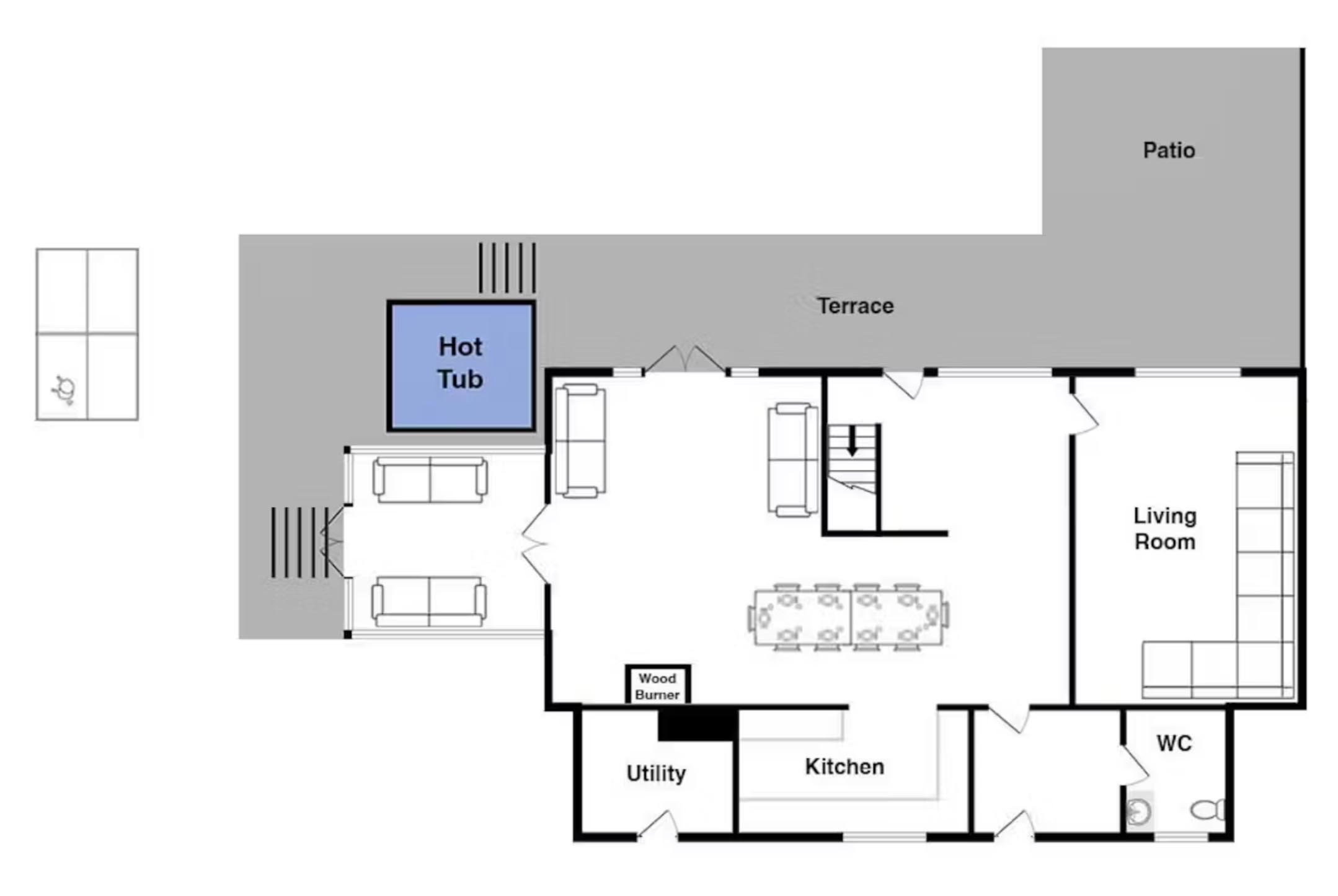
Floor Plans
Rooms
-
Babbling By - Bedroom 1 has a super king bed and room for an extra Z-Bed Bedroom 1
Super king bed. Optional extra Z-Bed.
Sleeps 2+1 -
Babbling By - Bedroom 2 has a king size bed Bedroom 2
King size bed.
Sleeps 2. -
Babbling By - Bedroom 3 has a super king bed and room for an extra Z-Bed Bedroom 3
Super king bed. Optional extra Z-Bed.
Sleeps 2+1 -
Babbling By - Bedroom 4 is a twin room Bedroom 4
Twin beds.
Sleeps 2. -
Babbling By - Bedroom 5 has twin beds Bedroom 5
Twin beds.
Sleeps 2. -
Babbling By - Bedroom 6, in the annexe, opens onto a balcony Bedroom 6
In the annexe. super king bed, ground floor shower room.
Sleeps 2 -
Babbling By - The kitchen has everything you need for your stay Kitchen
If requested a highchair will be left in the kitchen for you.
-
Babbling By - Open plan living means it's easy for you all to gather Equipment
This property owner offers the following items. If required these can be selected while doing your bed configurations within your booking.
1 x Highchair
1 x Cot
1 x Z Bed (child 12 years or under)
1 x Chair Bed (child 12 years or under)