Floor Plans
Rooms
- 
              
                
                The Glass House - Bedroom 1: What a view to wake up to! Bedroom 1
This is the master bedroom of the house, on the first floor. It has a king size bed, a contemporary bath by the glass wall, a stunning ensuite black marble steam/shower room, a dressing room and walk-in wardrobe.
Sleeps 2. - 
              
                
                The Glass House on the Lake - Bedroom 2: All bedrooms have electronically operated blinds Bedroom 2
On the first floor of the house, this room has a double bed and a beautiful white marble ensuite shower room.
Sleeps 2. - 
              
                
                The Glass House - Bedroom 3: The Pink Room; the treetops whisper just outside Bedroom 3
View ImagesOn the first floor of the house, this room has a double bed and a beautiful white marble ensuite shower room.
Sleeps 2. - 
              
                
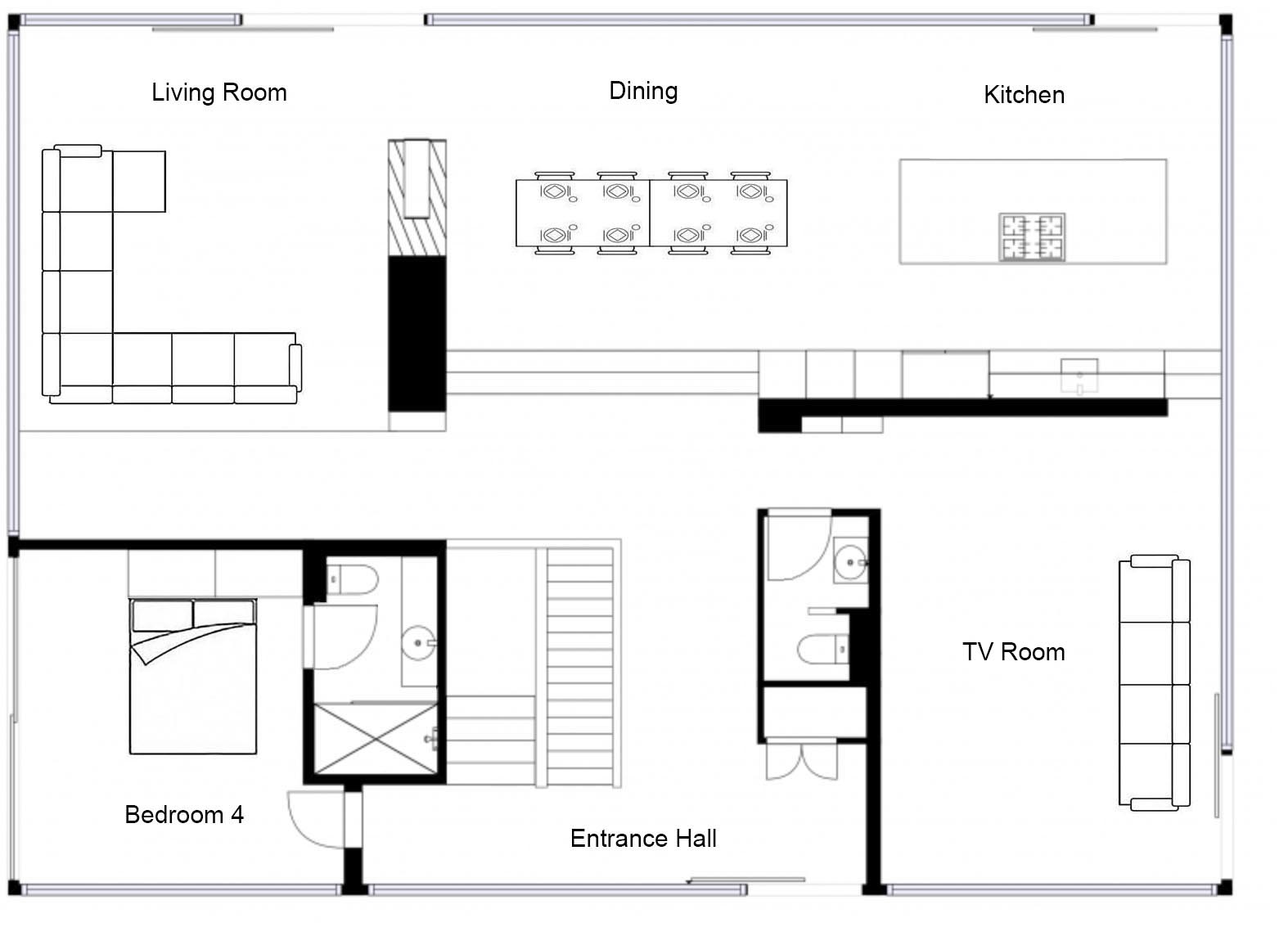
                The Glass House - Bedroom 4 is on the ground floor and has an ensuite wet room Bedroom 4
This on the ground floor and has a double bed and a white marble ensuite wet room.
Sleeps 2. - 
              
                
                The Glass House - The view from the kitchen Kitchen
1 highchair is available. If requested this will be left in the kitchen.
 - 
              
                
                The Glass House - A stunning lakeside holiday house sleeping 8 in 4 ensuite bedrooms Equipment
This property owner offers the following items. If required these can be selected while doing your bed configurations within your booking.
1 x Travel Cot (2 yrs and under)
1 x Highchair