Floor Plans
Rooms
- 
              
                
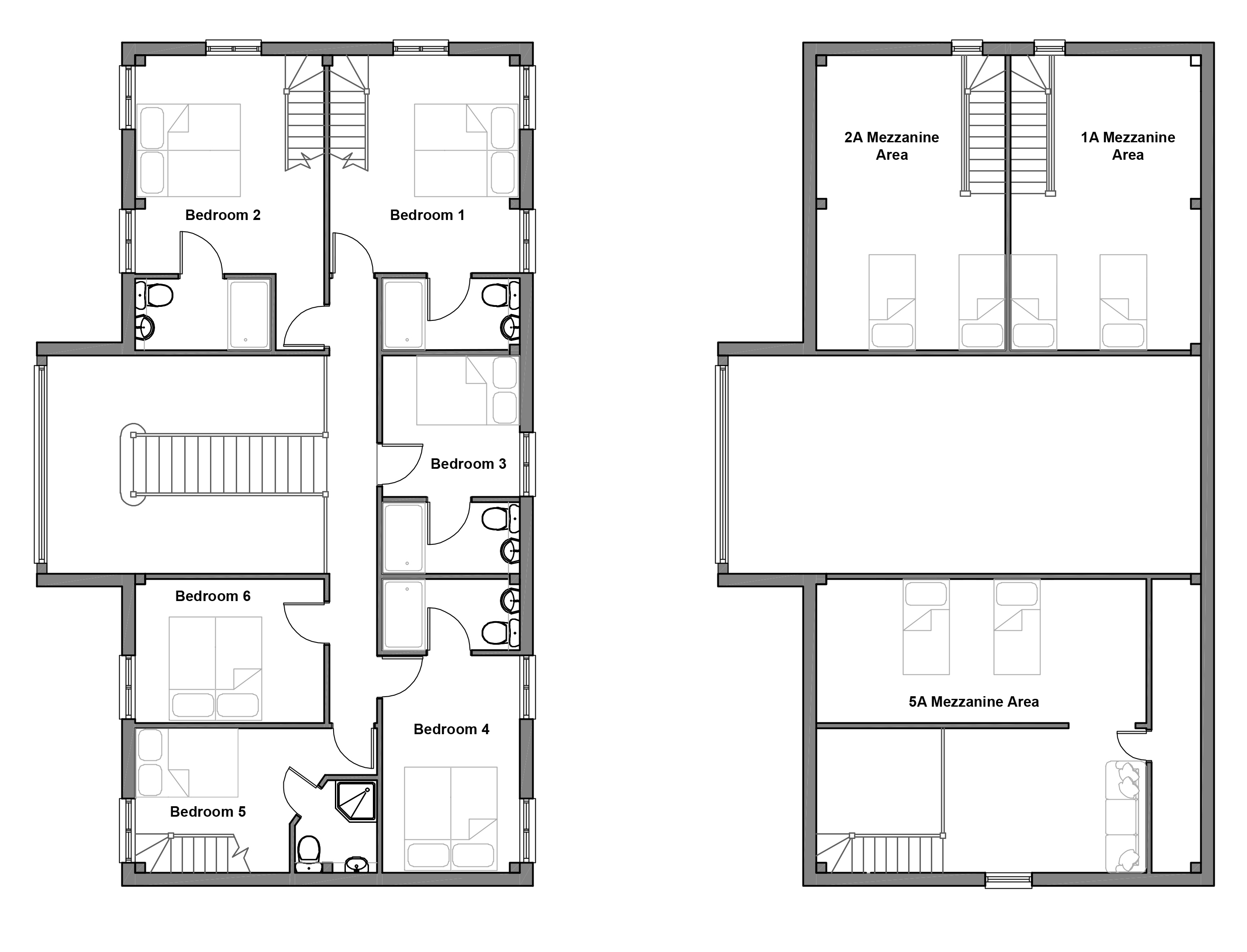
                Jollyoaks - Bedroom 1 has zip and link beds (king size or twin) and two singles on the mezzanine Bedroom 1
This room has zip and link beds (king size or twin) and two singles on the mezzanine. There is an ensuite shower room.
Sleeps 4 - 
              
                
                Jollyoaks - Bedroom 2: King size or twin, 2 singles on the mezzanine and an ensuite shower room Bedroom 2
This room has zip and link beds (king size or twin) and two singles on the mezzanine. There is an ensuite shower room.
Sleeps 4 - 
              
                
                Jollyoaks - Bedroom 3 has a king size bed and an ensuite shower room Bedroom 3
This room has a double bed and an ensuite shower room. The bed is against the wall on one side.
Sleeps 2 - 
              
                
                Jollyoaks - Bedroom 4: King size or twin and an ensuite shower room Bedroom 4
This room has zip and link beds (king size or twin) and an ensuite shower room.
Sleeps 2 - 
              
                
                Jollyoaks - Bedroom 5 has a small double bed and two singles on the mezzanine Bedroom 5
This room has a small double bed and on the mezzanine, two single beds. There is an ensuite shower room.
Sleeps 4 - 
              
                
                Jollyoaks - Bedroom 6 has zip and link beds (king size or twin) Bedroom 6
This room has zip and link beds (king size or twin).
Sleeps 2 - 
              
                
                Jollyoaks - The kitchen is swish and stylish Kitchen
If required, high chairs will be left for you in the kitchen or dining area.
 - 
              
                
                Jollyoaks - Group accommodation with a large hot tub in Somerset Equipment
This property owner offers the following items. If required these can be selected while doing your bed configurations within your booking.
2 x Highchairs
2 x Travel Cots (age 2 yrs and under)