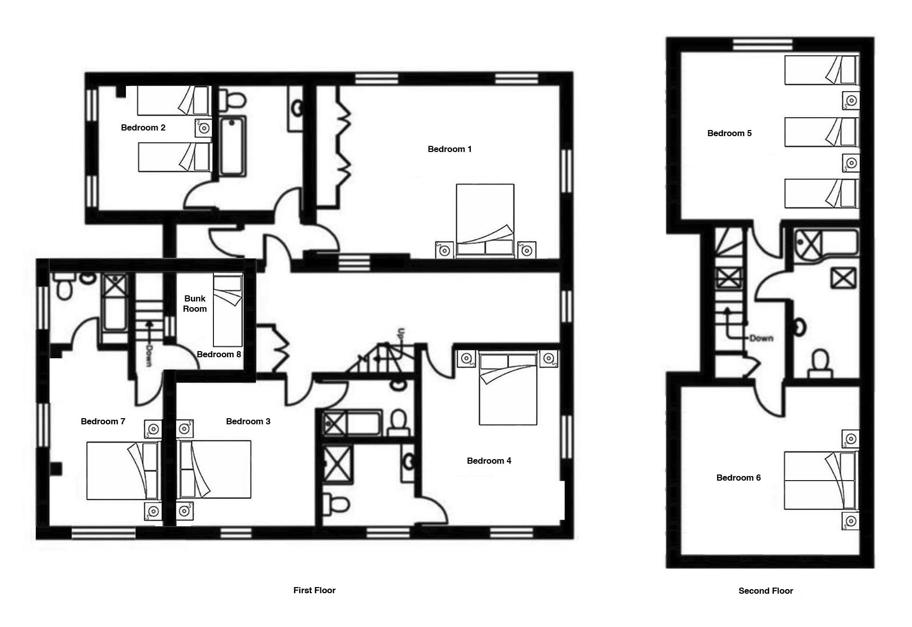
Floor Plans
Rooms
- 
              
                
                Hennaways - Bedroom 1 has a king size bed Bedroom 1
This is a large room on the first floor in the main house, with a king size bed. It forms part of a ‘suite’ with Bedroom 2 and an ensuite bathroom with a bath and handheld shower, so it’s a great option for a family. 2 extra beds can be accommodated in this room at an additional charge per person. (extra charge - see our Extras page).
Sleeps 2+2NB: Up to 3 extra beds can be used per booking.
 - 
              
                
                We don't have an image of this room just yet, sorry. Bedroom 2
This room is on the first floor of the main house, with 2 single beds. It forms part of a ‘suite’ with Bedroom 1 and a bathroom with a bath and handheld shower. There is room for 1 extra bed at an additional charge. (extra charge - see our Extras page).
Sleeps 2+1NB: Up to 3 extra beds can be used per booking.
 - 
              
                
                Hennaways - Bedroom 3 has a king size bed and an ensuite bathroom Bedroom 3
This room is on the first floor of the main house and has a king size bed and an ensuite bathroom with a handheld shower. There is room for 1 extra bed at an additional charge. (extra charge - see our Extras page).
Sleeps 2+1NB: Up to 3 extra beds can be used per booking.
 - 
              
                
                Hennaways - Bedroom 4 has a king size bed and an ensuite shower room Bedroom 4
This room is on the first floor of the main house and has a king size bed and an ensuite shower room. There is room for 1 extra bed at an additional charge. (extra charge - see our Extras page).
Sleeps 2+1NB: Up to 3 extra beds can be used per booking.
 - 
              
                
                Hennaways - Bedroom 5 shares a bathroom with Bedroom 6 Bedroom 5
This room is on the second floor of the main house and has 3 single beds and use of a bathroom with an overhead shower (shared with Bedroom 6). This is a great room for children as it has a dressing up box, books and games room. There is room for 2 extra beds, charged per person. (extra charge - see our Extras page).
Sleeps 3+2NB: Up to 3 extra beds can be used per booking.
 - 
              
                
                Hennaways - Bedroom 6 can have a super king or twin beds Bedroom 6
This room is on the second floor of the main house and can have a super king or twin beds. It uses the adjacent bathroom which has an overhead shower (shared with Bedroom 5). There is room for 1 extra bed, charged per person. (extra charge - see our Extras page).
Sleeps 2+2NB: Up to 3 extra beds can be used per booking.
 - 
              
                
                Hennaways - Bedroom 7 has a king size bed Bedroom 7
This room is in the adjoining annexe. It has a king size bed and an ensuite shower room (shared with Bedroom 8).
Sleeps 2 - 
              
                
                We don't have an image of this room just yet, sorry. Bedroom 8
This room is in the annexe. It has bunk beds and use of the ensuite shower room for Bedroom 7.
Sleeps 2